Haus Evita
Das haus an der Talstation Bergbahn Hohsaas
Fam A. Anthamatten
Haus Evita
Das 1997 gebaute Mehrfamilienhaus Evita steht in sonniger und zentraler Lage, unmittelbar neben der Talstation der Bergbahnen Hohsaas AG. Im Winter heisst unser Slogan: „Skifahren bis vor die Haustüre“. Die Wohnungen sind modern und gemütlich eingerichtet. Alle mit TV-Sat und Radio, Internet, Geschirrspüler, Kaffeemaschine, geheizter Skiraum. Lift und Parkplatz beim Haus ergänzen das Angebot.
3 1/2 ZIMMERWOHNUNG DG
Die 3 ½ Zimmerwohnung befindet sich in der dritten Etage unter dem Dach. Für den grossartigen Blick auf die Bergwelt garantieren die Balkone auf der Ost-, Süd- und Westseite. Die Wohnung besteht aus einem Wohnraum, zwei Schlafzimmern, einer Küche und mit einem modernen Badraum.
- WLAN
- Küche
- Grundausstattung
- Kaffeemaschine
- Kleiderbügel
- Lift
- Barrierefrei
- Parkplatz
- TV
- Arbeitsplatz
- Heizung
- Feuerlöscher
- Kinder erwünscht
- Keine Haustiere
- Rauchen verboten
- Bushaltestelle 20 m
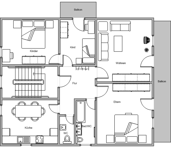
4 1/2 ZIMMERWOHNUNG 2. OG
Die 4 ½ Zimmerwohnung befindet sich in der zweiten Etage. Für den grossartigen Blick auf die Bergwelt garantieren die Balkone auf der Ost-, Süd- und Westseite. Die Wohnung besteht aus einem Wohnraum, drei Schlafzimmern, einer Küche und mit einem modernen Badraum.
- WLAN
- Küche
- Grundausstattung
- Kaffeemaschine
- Kleiderbügel
- Lift
- Barrierefrei
- Parkplatz
- TV
- Arbeitsplatz
- Heizung
- Feuerlöscher
- Kinder erwünscht
- Keine Haustiere
- Rauchen verboten
- Bushaltestelle 20 m
4 1/2 ZIMMERWOHNUNG 1. OG
Die 4 ½ Zimmerwohnung befindet sich in der ersten Etage. Für den grossartigen Blick auf die Bergwelt garantieren die Balkone auf der Ost-, Süd- und Westseite. Die Wohnung besteht aus einem Wohnraum, drei Schlafzimmern, einer Küche und mit einem modernen Badraum.
- WLAN
- Küche
- Grundausstattung
- Kaffeemaschine
- Kleiderbügel
- Lift
- Barrierefrei
- Parkplatz
- TV
- Arbeitsplatz
- Heizung
- Feuerlöscher
- Kinder erwünscht
- Keine Haustiere
- Rauchen verboten
- Bushaltestelle 20 m
Haus Weissmies
Das Ferienhaus im Walliser Stil
Fam A. Anthamatten
Haus Weissmies
Das Haus Weissmies ist ein Ferienhaus im Walliser Stil und liegt im Zentrum des Dorfes. Das Haus Weissmies ist ca. 20 m von der Strasse zurückgesetzt und somit recht ruhig. Die Wohnungen verfügen über Süd- und Westbalkone. Die zwei 4½ Zimmerwohnungen sind gemütlich eingerichtet und sehr geräumig. Beide mit Sat-TV und Radio, Internet, Geschirrspüler und Kaffeemaschine. Vor dem Haus ladet eine grosse Liegewiese zum Verweilen.
4 1/2 ZIMMERWOHNUNG DG
Die 4 ½ Zimmerwohnung befindet sich in der dritten Etage. Die Wohnung besteht aus einem Wohnraum, drei Schlafzimmern, einer Küche, Bad/WC und Dusche/WC. Gemütlich eingerichtet und sehr geräumig
- WLAN
- Küche
- Grundausstattung
- Kaffeemaschine
- Kleiderbügel
- Parkplatz
- Bushaltestelle 100 m
- TV
- Arbeitsplatz
- Heizung
- Feuerlöscher
- Kinder erwünscht
- Keine Haustiere
- Rauchen verboten
4 1/2 ZIMMERWOHNUNG 1. OG
Die 4½ Zimmerwohnung befindet sich in der zweiten Etage. Die Wohnung besteht aus einem Wohnraum, drei Schlafzimmern, einer Küche, Bad/WC und Dusche/WC.
- WLAN
- Küche
- Grundausstattung
- Kaffeemaschine
- Kleiderbügel
- Parkplatz
- Bushaltestelle 100 m
- TV
- Arbeitsplatz
- Heizung
- Feuerlöscher
- Kinder erwünscht
- Keine Haustiere
- Rauchen verboten
Buchen Sie jetzt ihre Ferienwohnung:
Kontakt
Fam. A. Anthamatten
Seilbahnstrasse 10
3910 Saas-Grund
info@fun-im-saas.ch
T +41 27 957 49 51





































































